(473) 262-17-16
promkom-vrn@yandex.ru
Главная Каталог ОАО «Транспневматика» Компрессоры Электрокомпрессор ЭК 4Б-М

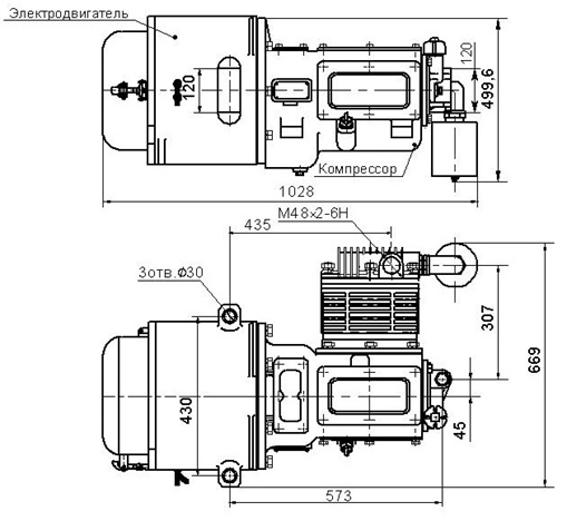
Электрокомпрессор ЭК 4Б-М

Цена: договорная Заказать

Электрокомпрессор ЭК 4Б-М

Назначение Питание сжатым воздухом тормозных систем и пневматических приборов вагонов метрополитена.

Тип компрессора Одноступенчатый, двухцилиндровый, с горизонтальным расположением цилиндров.

Режим работы Режим работы повторно-кратковременный, с продолжительностью включения (ПВ) до 50% при продолжительности цикла до 10 минут включительно и номинальных величинах давления нагнетания и частоты вращения коленчатого вала.

Примечание По мере поступления заказов поставляется на экспорт.

Код ОКПД2 30.20.40.

ТУ 24.05.896-89